На Уралмаше восстановят культовое здание фабрики-кухни

На Уралмаше восстановят культовое здание фабрики-кухни

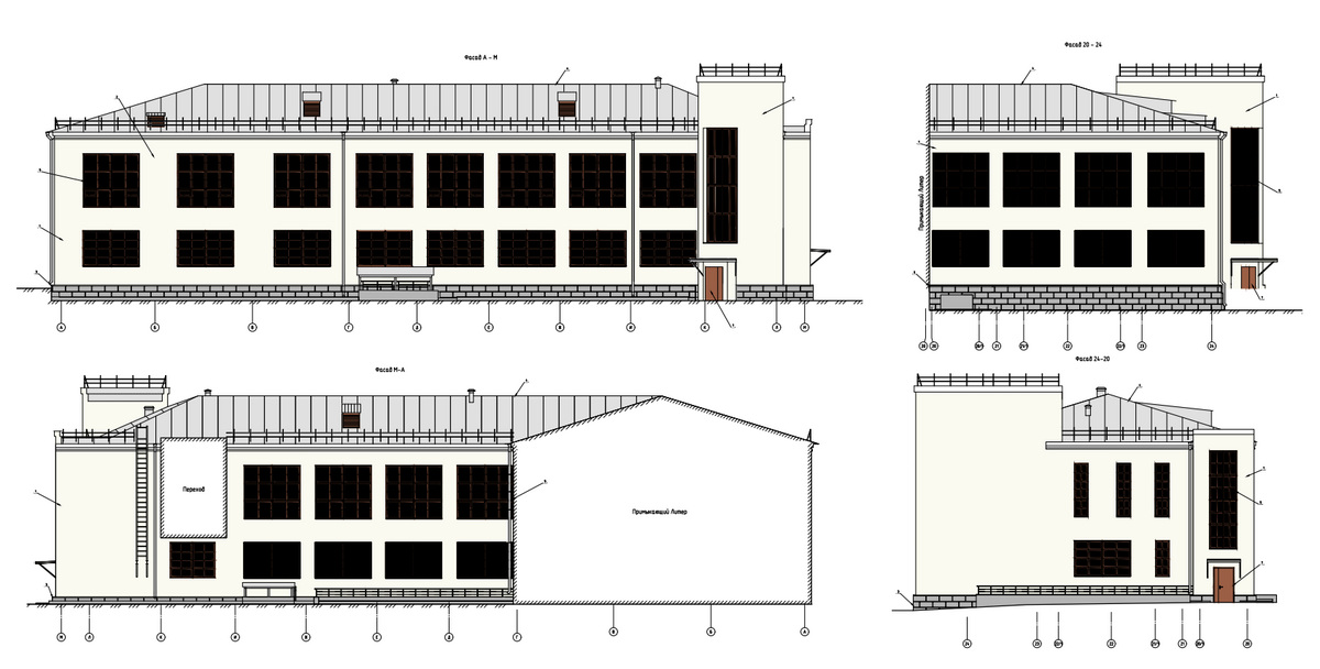
Администрация Екатеринбурга готова выделить почти 18 миллионов рублей на реставрацию здания на Уралмаше. Сейчас ищут подрядчика, чтобы провести косметический ремонт бывшее здание фабрики-кухни УЗТМ, где сейчас находится Екатеринбургская академия современного искусства. Об этом стало известно с сайта Госзакупок.

— Выполнение ремонтных работ по сохранению объекта культурного наследия расположенного по адресу: город Екатеринбург, улица Красных партизан, 9 / улица Культуры, 3. Цена контракта: 17 945 250,00 рублей, — сообщается в проектной документации.
Первый вариант реставрацииВторой вариант реставрации

В рамках реставрации за 17 945 250 рублей отремонтируют кровлю, перекрасят и отремонтируют фасады, приведут оконные и дверные проемы в порядок, заменят водосточные трубы, создадут дополнительную теплоизоляцию, а все деревянные элементы обработают огнеупорным составом. Работы по переустройству здания фабрики-кухни должны будут закончить к 25 декабря 2023 года, если найдется подрядчик.

Ранее на сайте Госзакупок Администрация искала подрядчика на реставрацию здания в стиле модерн в центре Екатеринбурга. В планах было проведение косметических мероприятий и ремонт карнизов.

Чтобы оставаться в курсе событий даже после блокировки Google, подписывайтесь на Telegram-канал и группу Вконтакте «Моментов». Если вы хотите поделиться новостями с редакцией, сообщите на почту news@momenty.org.