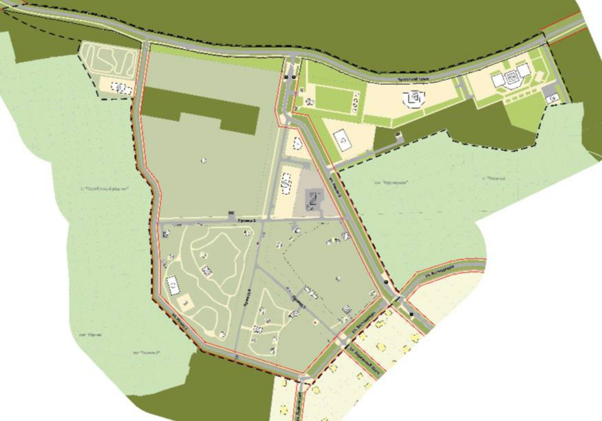
В Екатеринбурге планируют начать строительство нового торгово-развлекательного центра. Располагаться он будет около элитного коттеджного поселка «Палникс» на Широкой Речке. Документация проекта появилась на официальном портале Екатеринбурга.
— Центральная часть территории планирования планируется под поле для гольфа. В южной части располагается зона объектов физической культуры и массового спорта. Вдоль Чусовского тракта в северной части проектируемой территории по периметру размещены общественные объекты, затем расположены участки сохраняемого лесного массива, — говорится в документах.

Помимо торгового центра, на территории также построят конно-спортивную базу, физкультурно-игровой комплекс, спортивный комплекс стрелкового тира, поле для гольфа на 10 гектаров и детский сад на 200 мест. Проектом будет заниматься застройщик «Палникс Групп», завершить застройку планируют к 2035 году.
Еще один торговый центр, который скоро появится в Екатеринбурге, будет располагаться около станции метро «Ботаническая». Там уже началось строительство «Золотого», и, судя по размаху, денег в него вкладывают соответствующе названию. Например, там появится крупнейший в России медиаэкран.
Чтобы оставаться в курсе событий даже после блокировки Google, подписывайтесь на Telegram-канал и группу Вконтакте «Моментов». Если вы хотите поделиться новостями с редакцией, сообщите на почту news@momenty.org.
